Inspection and auction details
- Saturday8November
- Thursday13November
- Saturday15November
- Saturday22November
- +2 more inspections
- Auction26November
Auction location: In Rooms: Ray White Manukau
House for Sale in Pukekohe
Develop or Build your Investments HERE!
- 3 Beds
- 1 Bath
- 2 Cars
Additional Information:
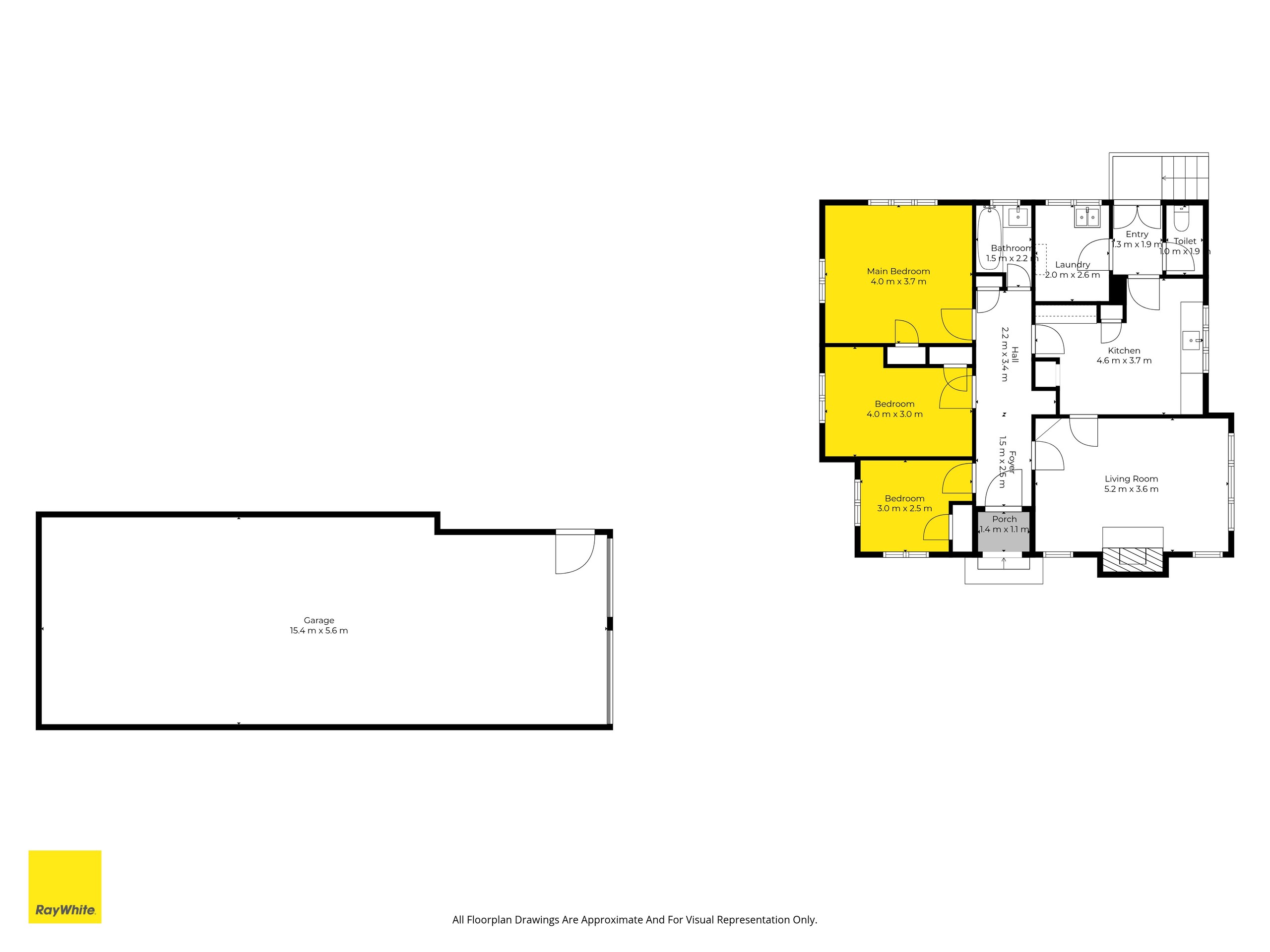
More InfoBuilt in 1948, this sturdy, classic, 3-bedroom, 1-bathroom Brick and Tile home is totally original and set on a desirable 1047sqm site. The home's quirky, retro character with high ceilings could be brought back to life and 2 further homes added ( subject to Council consent), or the home could be removed and a new development created. To the rear of the site is the old single garage, behind which a further consented 2-car garage has been built.
Perfectly placed for young families next to Valley School and within walking distance of the Pukekohe Town Center, this is an appealing location for an astute visionary.
Take advantage before the market changes .....This home MUST BE SOLD!!
View Saturday 11am -11:30am
Thursday 2pm- 2:30pm
Auction In rooms 11am 26 November 2025 at Ray White Manukau 603 Great South Road, Manukau (Unless Sold Prior)
Disclaimer - This property is being sold by auction and therefore a price guide can not be provided. The website may have filtered the property into a price bracket for website functionality purposes. All prospective purchasers shall complete their own due diligence, seek legal and expert advice, and satisfy themselves with respect to information supplied during the marketing of this property, including but not limited to: the floor and land sizes, boundary lines, underground services, along with any scheme plans or consents.
- Sunroom
- Electric Hot Water
- Heat Pump
- Standard Kitchen
- Combined Dining/Kitchen
- Separate WC/s
- Separate Bathroom/s
- Separate Lounge/Dining
- Fair Interior Condition
- Off Street Parking
- 2+ Car Garage
- Partially Fenced
- Concrete Tile Roof
- Fair Exterior Condition
- Northerly and Southerly Aspects
- City Sewage
- Town Water
- Street Frontage
- Below Ground
- Shops Nearby
- Public Transport Nearby
See all features
- Light Fittings
- Fixed Floor Coverings
MKU46766
105m²
1,047m² / 0.26 acres
2 garage spaces
3
1
Additional Information:
More InfoAgents
- Loading...
- Loading...
