Inspection and auction details
- Saturday10January
- Sunday11January
- Saturday17January
- Sunday18January
- Saturday24January
- Sunday25January
- +4 more inspections
- Auction28January
Auction location: In Rooms: Ray White Manukau
- Photos
- Video
- Description
- Ask a question
- Next Steps
House for Sale in Manurewa
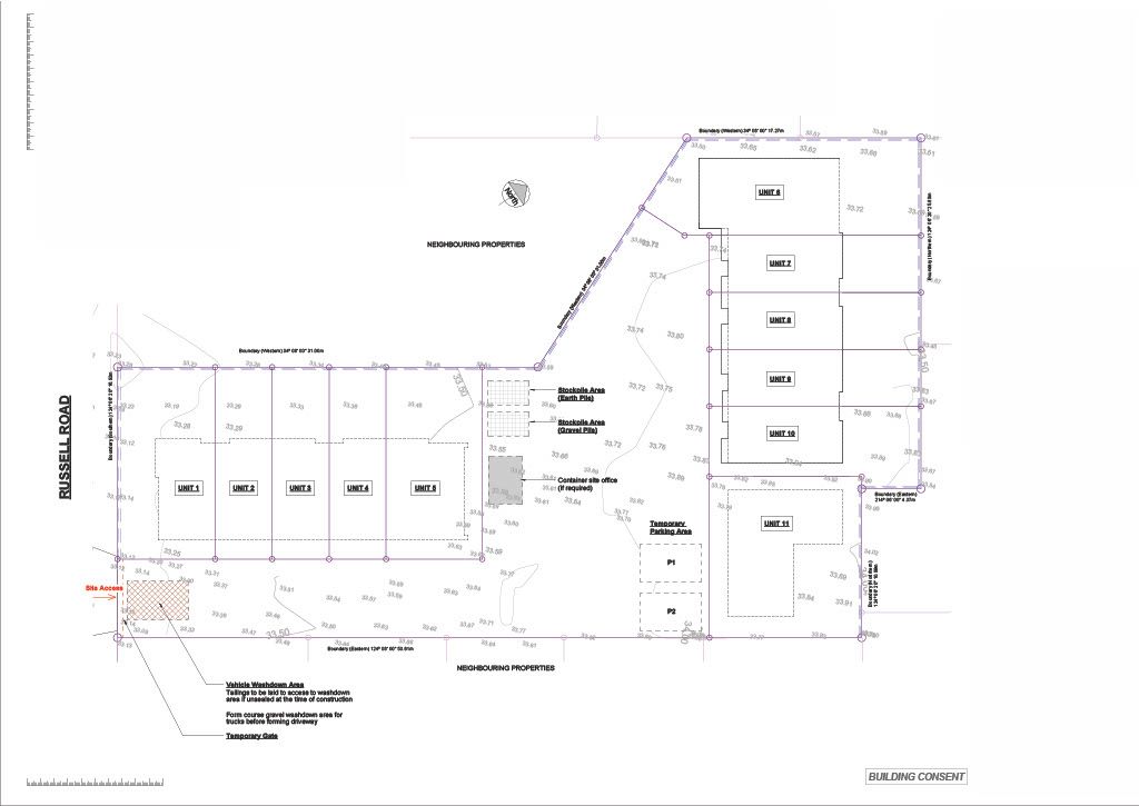
#THEDAY - RC, BC + EPA FOR 11x HOMES
- 9 Beds
- 2 Baths
Additional Information:
More InfoWelcome to 121A & 123 Russell Road, Manurewa where success has two addresses:
Consent-Approved Development Goldmine!
A rare, consent-backed development opportunity ready for action.
RC + BC + EPA APPROVED FOR 11 LOTS:
2x Blocks of 5x2 bed, 1.5 bath + study
1x Premium Corner 3 bed, 2 bath with huge floor area
With the heavy lifting already done, you can move straight into construction or stage the project to suit your pipeline.
The site is currently tenanted, generating approximately $82,000 per annum, providing valuable cashflow while you finalise build timing.
Further advantages include services accessible, no known flooding issues, and a long, flexible settlement, making this an ideal acquisition for experienced developers seeking certainty and speed to market.
Opportunities with this level of preparation are rare!
Ideal for developers, investors or land bankers looking for a turnkey opportunity to start the year off with a bang!
Current Property:
121A Russell Road
*607m2 Land
*113m2 Floor
*4 bed, 1 bath
123 Russell Road
*903m2 Land
*150m2 Floor
*5 bed, 1 bath
Call agents now for further information, and full documents available on request.
#THEDAY 28th January 2026 from 9:00 am at Ray White Manukau (unless sold prior)
Disclaimer - This property is being sold by auction and therefore a price guide can not be provided. The website may have filtered the property into a price bracket for website functionality purposes. All prospective purchasers shall complete their own due diligence, seek legal and expert advice, and satisfy themselves with respect to information supplied during the marketing of this property, including but not limited to: the floor and land sizes, boundary lines, underground services, along with any scheme plans or consents.
- Dining Rooms
- Living Rooms
- Light Fittings
- Dishwasher
- Fixed Floor Coverings
- Extractor Fan
MKU47407
263m²
1,520m² / 0.38 acres
15 off street parks
2
9
2
Additional Information:
More InfoAgents
- Loading...
- Loading...
